Ce studio de jardin en bois offre une surface de 5 m² grâce à ses dimensions au sol de 2,50 x 2,00 m. Ses dimensions compactes sont idéales pour créer un bureau de jardin même si vous disposez d’un espace restreint sur votre terrain. Sa baie vitrée et sa grande fenêtre fixe offrent une belle luminosité à l’intérieur de l’abri.
Les dimensions du bureau de jardin Doméo Mini Plus :
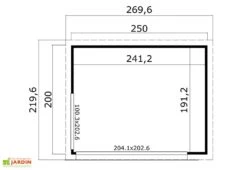
- Dimensions hors tout : 269,6 x 219,6 soit une surface totale de 5,92 m²
- Dimensions extérieures : 250 x 200 cm soit une surface au sol de 5 m²
- Dimensions intérieures : 241,2 x 191,2 cm soit une surface utile de 4,61 m²
Sa dimension intérieure étant inférieure à 5 m², sauf dans certains cas exceptionnels, cet abri de jardin est exonéré de la taxe d’aménagement ! (Renseignez-vous toujours auprès de votre mairie.)
Le chalet en bois, fabriqué par Lasita, culmine à une hauteur de 2,39 m et dispose d’un toit plat en voliges de 18 mm d’épaisseur, recouvert d’un feutre bitumé (prévoir une couverture définitive pour une étanchéité optimale sur le long terme). Une légère pente de 3,1° permet à l’eau de s’évacuer facilement. La surface totale de la toiture, débords de toit compris, est de 5,40 m².
Les parois de l’abri de jardin sont constituées de madriers en bois à emboiter les uns avec les autres, pour faciliter le montage. Les madriers sont en épicéa brut, il est nécessaire de leur appliquer un traitement fongicide et insecticide pour protéger le bois. Les murs d’une épaisseur de 44 mm et le double vitrage 4/6/4 mm utilisé pour les fenêtres vous permettent de rendre ce chalet de jardin habitable.
Les fenêtres du chalet de jardin :
- 1 baie vitrée coulissante : 204,1 x 202,6 cm (l,h)
- 1 fenêtre châssis fixe : 100,3 x 202,6 cm (l,h)
Lasita a fait le choix d’un double vitrage de 14 mm (4/6/4) pour ses fenêtres offrant ainsi 47% d’économie d’énergie par rapport à un vitrage simple. En effet, le double vitrage bénéficiant d’une bien meilleure isolation, vous limitez l’utilisation du chauffage en hiver et la pénétration de la chaleur en été.
La porte peut être verrouillée pour une protection accrue contre le vol. Les cadres des fenêtres et les protections de connexions d’angles sont en aluminium gris anthracite, un matériau qui ne rouille pas et qui ne demande pas d’entretien. L’abri est livré avec son plancher : les lambourdes sont traitées.
Le bureau de jardin bénéficie d’une garantie de 5 ans.
Important : une isolation supplémentaire des murs sera nécessaire pour une utilisation à l’année.
















Avis
Il n’y a pas encore d’avis.