Le garage en bois Dillon est conçu pour accueillir une voiture, mais pourra également faire office d’abri de jardin pour le rangement de vos outils et autre matériel de jardinage, par exemple. Il offre une surface intérieure de 15,6 m² pour une hauteur totale de 2,74 m. Livré en kit, ce garage est à monter soi-même. Vous devrez pour cela assembler les madriers de 34 mm dont il se compose.
Ce garage est fabriqué en épicéa, un bois tendre et, dans ce cas précis, non traité. L’épicéa étant plutôt sensible à l’humidité, mais également aux champignons et aux insectes, il vous faudra traiter le bois du garage en appliquant une lasure et en ayant recours à des fongicides et insecticides. Ces différents traitements sont à appliquer sur le bois brut.
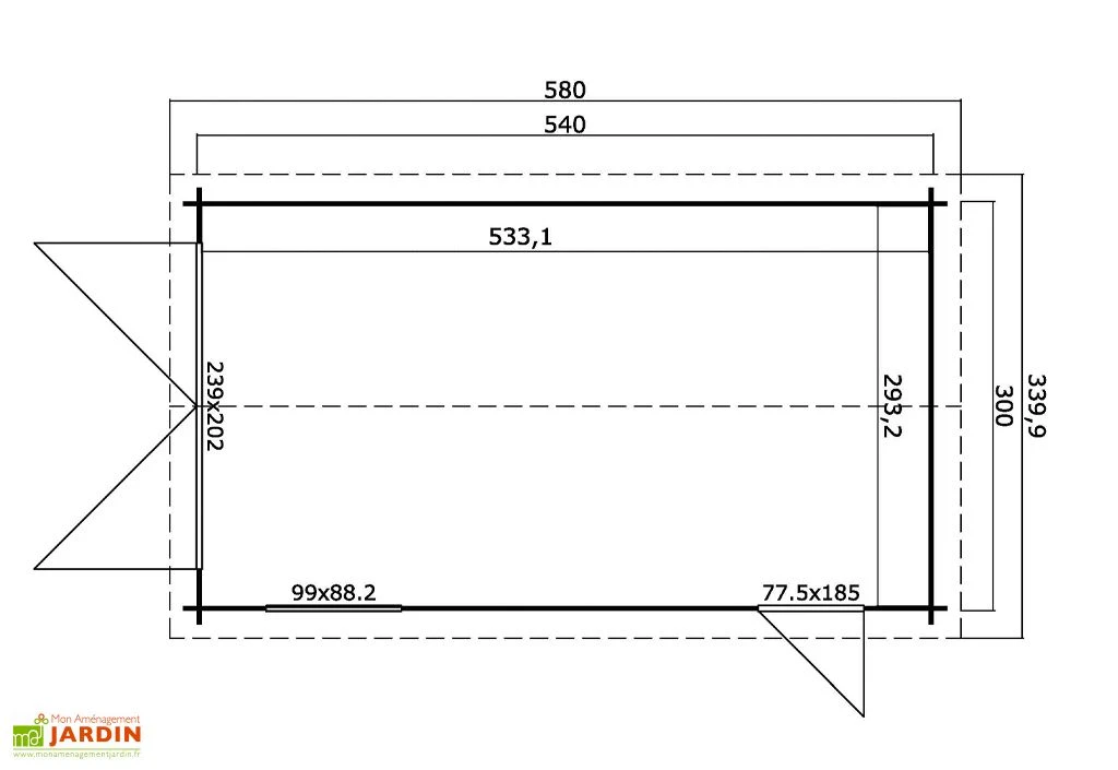
Avec une largeur de 2,39 m et une hauteur de 2,02 m, la double porte battante dont est doté ce garage permet de garer facilement votre voiture. Une porte de service, située à l’arrière, facilitera quant à elle l’accès lorsque votre véhicule est stationné. Cette porte, tout comme la fenêtre, est équipée d’un simple vitrage. La toiture du garage, à deux pans, est pourvue de voliges de 15 x 90 mm.
Ce garage est garanti 2 ans.














Avis
Il n’y a pas encore d’avis.